5 locali in vendita

Caserta, Via Gaetano Salvemini - Caserta Nord
€ 245.000
Prezzo aggiornato
5 locali 5 locali
172 Mq 172 Mq
2 bagni 2 bagni

5 locali in vendita

Caserta, Via Gaetano Salvemini - Caserta Nord

Descrizione annuncio

Caserta - Via Salvemini

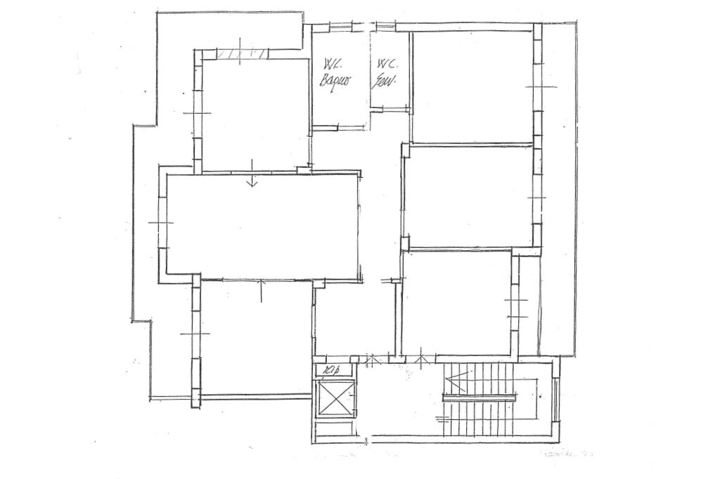
In contesto residenziale tranquillo e ben curato, nel Parco Alceda, proponiamo in vendita un ampio appartamento di circa 170 mq situato al secondo piano con ascensore, con box auto, a pochi passi dalla Reggia di Caserta.

L’immobile, attualmente utilizzato come ufficio, si presenta in ottime condizioni e poco usurato, grazie all’uso professionale nel tempo. La proprietà gode di doppio ingresso e di ampie balconate che garantiscono luminosità e affacci ariosi.

La superficie interna è oggi suddivisa in 6 vani e due bagni, ma si presta facilmente ad una comoda trasformazione in abitazione.

Possibile distribuzione abitativa:

- ingresso

- studio

- cucina abitabile

- ampio salone doppio

- tre camere da letto

- due bagni

Grazie alla generosa metratura, alla doppia entrata e alla posizione strategica vicino al centro e alla Reggia, l’appartamento rappresenta una soluzione ideale sia come abitazione di rappresentanza, sia come studio professionale o investimento.

Per ulteriori informazioni o per fissare una visita, non esitare a contattarci.

Mostra tutto

Nelle vicinanze

Trasporto pubblico Trasporto pubblico
stazione di Caserta
stazione di Caserta
1,0 Km
Caserta
Caserta
930 m
Caserta, Casagiove
Caserta, Casagiove
1,1 Km
Recale
Recale
1,6 Km
Ricariche auto elettriche Ricariche auto elettriche
Sede Enel Caserta | EnelX
550 m
Stazione di Caserta | Enelx
1,1 Km
Caserta Acquaviva | EnelX
1,6 Km
Caserta Piazza Carlo Cattaneo | EnelX
2,2 Km
Caserta Ferrarecce | EnelX
2,3 Km
Scuole Scuole
Scuole
420 m
Rettorato
440 m
Università della Campania "Luigi Vanvitelli"
440 m
Scuola elementare statale Aldo Moro
1,0 Km
Scuola elementare E. De Amicis
1,3 Km
Farmacia Farmacia
Farmacia San Michele
1,0 Km
Farmacia
1,4 Km
Farmacia Odierna
1,7 Km
Farmacia Fugaro
2,1 Km
Barca
2,3 Km
Ospedali Ospedali
Clinica Villa del Sole
20 m
Azienda Ospedaliera di Caserta Sant'Anna e San Sebastiano
2,2 Km
Pronto Soccorso Ospedale "Sant'Anna e San Sebastiano"
2,2 Km
Ospedale di Caserta - LATO NUOVO
2,2 Km
Ospedali
2,3 Km
Supermercati Supermercati
Supermercato "MD"
850 m
EuroSpin Caserta
1,2 Km
Famila
1,4 Km
Supermercati
1,4 Km
Conad Superstore
1,6 Km
Negozi Negozi
La Casa del Pane
470 m
NewHope Store
1,4 Km
I'M Boutique Uomo
1,4 Km
I'M boutique Donna
1,4 Km
Il forno
1,6 Km
Bar Bar
Caffetteria Vanvitelli
1,1 Km
Bar
1,1 Km
Antica Caffetteria La Reggia
1,1 Km
Serao
1,1 Km
Red Eye
1,2 Km
Ristoranti Ristoranti
Ristorante Le Colonne
220 m
Le Quattro Fontane
1,1 Km
Le tre farine
1,2 Km
Ristoranti
1,4 Km
Lievitalmente Pino
1,5 Km
Mostra tutto

Caratteristiche

Rif.:
61187809
Piano:
2 di 4 con ascensore (Piano medio)
Box:
1
Balconi:
2
Camere da letto:
4
Arredamento:
Assente
Mostra tutto
Prezzo Prezzo
€ 245.000
Rata mutuo Rata mutuo
€ 1.155 / mese
Spese annue Spese annue
€ 6.000
Proponi il tuo prezzoProponi il tuo prezzo
Immobile valutato con T·Valuta

Classe Energetica

G
G
G
G
G
G
G
G
G
Anno di costruzione:
1980
Riscaldamento:
Autonomo
Tipo impianto:
A radiatori
Tipo alimentazione:
Metano

Prezzo ridotto di €1 (10%%)

Ti interessa visionare l'immobile?

Fissa un appuntamento  Fissa un appuntamento

Richiedi informazioni

Clicca su Leggi per aprire l'informativa
* Questi campi sono obbligatori

Calcola il tuo mutuo

Semplice e senza impegno
Anticipo

( % )
Mutuo

( % )

pochi semplici passi

inserisci i tuoi dati
Questionario completato
Grazie per aver richiesto un appuntamento senza impegno con un nostro Consulente del Credito e Assicurativo.

Hai inserito correttamente tutti i dati necessari e a breve riceverai una e-mail con un link da convalidare per inviare i tuoi dati.
Affiliato
Alma Project Srl
Via Nazionale Appia, 61 81022 Casagiove (CE)
Via Nazionale Appia, 61 81022 Casagiove (CE)
Zona: Casagiove
Mostra su mappa
Orari: lunedì - venerdì: 9.00 - 19.30 / sabato: 9.00 - 13.00
Affiliato
Alma Project Srl
Via Nazionale Appia, 61 81022 Casagiove (CE)

2026 Tecnocasa Franchising S.p.A. - P. IVA 08365160152 - Via Monte Bianco 60/A 20089 Rozzano (MI). Ogni agenzia ha un proprio titolare ed è autonoma. Privacy policy | Policy utilizzo | Cookie policy