Trilocale in vendita

Caserta, Via Carlo Santagata - Caserta Nord
€ 105.000
3 locali 3 locali
93 Mq 93 Mq
1 bagno 1 bagno

Trilocale in vendita

Caserta, Via Carlo Santagata - Caserta Nord

Descrizione annuncio

Caserta

Via Carlo Santagata

In posizione strategica e centralissima, a brevissima distanza dalla splendida Reggia, dalla stazione ferroviaria e dall’Università degli Studi della Campania Luigi Vanvitelli, proponiamo in vendita appartamento al primo piano rialzato.

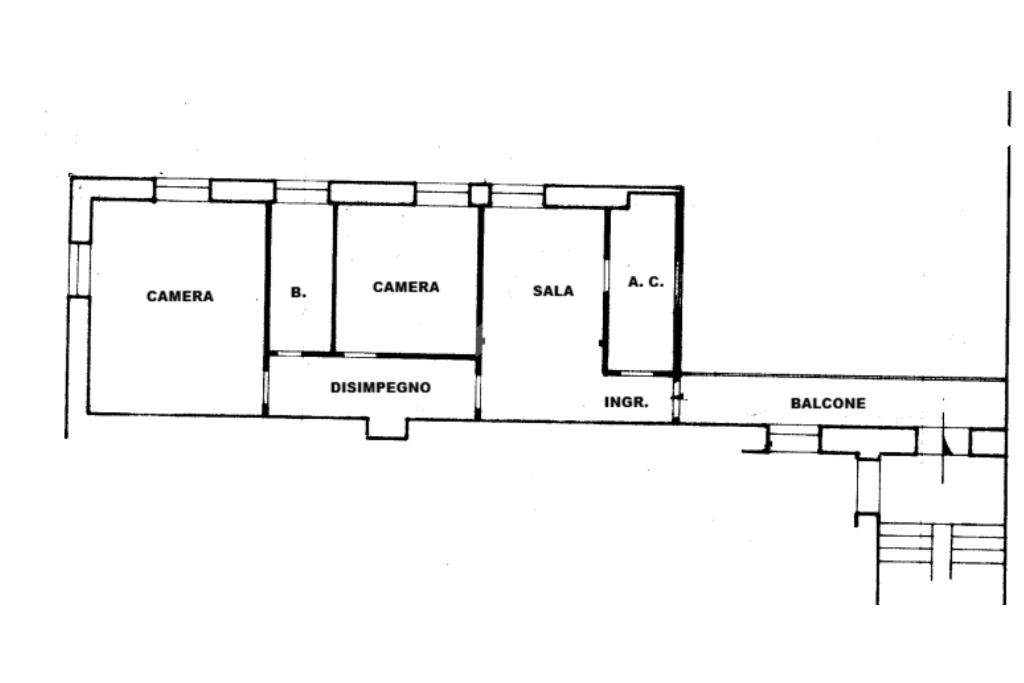
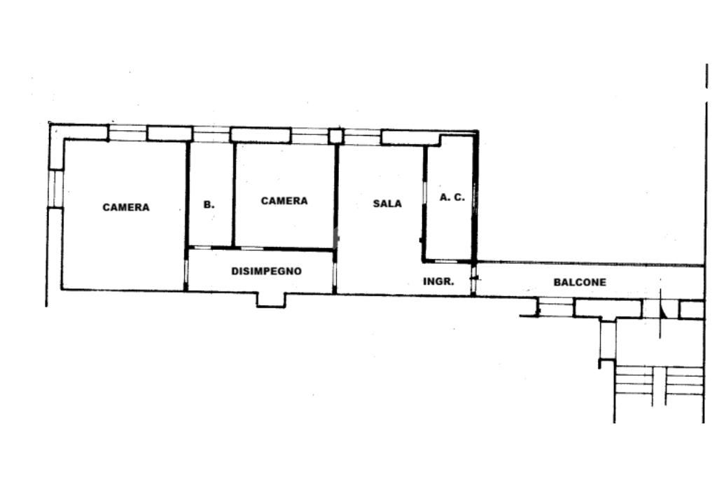
L’immobile è così composto:

- Ballatoio privato

- Soggiorno con angolo cottura

- Disimpegno

- Due ampie camere

- Bagno

Completano la proprietà:

- Posto auto scoperto

- Cantinola

L’appartamento è da ristrutturare, ideale per chi desidera personalizzare gli spazi secondo il proprio gusto o per investimento, vista la posizione altamente richiesta e ben collegata.

Ottima soluzione sia come abitazione principale sia come investimento per locazioni a studenti o uso turistico.

Mostra tutto

Nelle vicinanze

Trasporto pubblico Trasporto pubblico
stazione di Caserta
stazione di Caserta
820 m
Caserta
Caserta
720 m
Caserta, Casagiove
Caserta, Casagiove
1,4 Km
Recale
Recale
1,8 Km
Ricariche auto elettriche Ricariche auto elettriche
Sede Enel Caserta | EnelX
450 m
Stazione di Caserta | Enelx
840 m
Caserta Acquaviva | EnelX
1,4 Km
Caserta Piazza Carlo Cattaneo | EnelX
2,0 Km
Caserta Ferrarecce | EnelX
2,1 Km
Scuole Scuole
Scuole
270 m
Rettorato
280 m
Università della Campania "Luigi Vanvitelli"
280 m
Scuola elementare E. De Amicis
1,0 Km
Università degli Studi della Campania "Luigi Vanvitelli"
1,1 Km
Farmacia Farmacia
Farmacia
1,2 Km
Farmacia San Michele
1,2 Km
Farmacia Odierna
1,5 Km
Farmacia Fugaro
1,9 Km
Barca
2,2 Km
Ospedali Ospedali
Clinica Villa del Sole
270 m
Azienda Ospedaliera di Caserta Sant'Anna e San Sebastiano
2,0 Km
Pronto Soccorso Ospedale "Sant'Anna e San Sebastiano"
2,0 Km
Ospedale di Caserta - LATO NUOVO
2,1 Km
Ospedali
2,1 Km
Supermercati Supermercati
Supermercato "MD"
760 m
EuroSpin Caserta
1,2 Km
Supermercati
1,2 Km
Famila
1,3 Km
Deco
1,4 Km
Negozi Negozi
La Casa del Pane
700 m
NewHope Store
1,1 Km
I'M Boutique Uomo
1,2 Km
I'M boutique Donna
1,2 Km
Il forno
1,4 Km
Bar Bar
Caffetteria Vanvitelli
840 m
Bar
840 m
Antica Caffetteria La Reggia
850 m
Serao
900 m
Red Eye
930 m
Ristoranti Ristoranti
Ristorante Le Colonne
30 m
Le tre farine
1,0 Km
Ristoranti
1,2 Km
Le Quattro Fontane
1,2 Km
Chips King
1,3 Km
Mostra tutto

Caratteristiche

Rif.:
61179692
Piano:
1 di 3 (Piano basso)
Posti auto:
1
Balconi:
1
Camere da letto:
2
Arredamento:
Assente
Mostra tutto
Prezzo Prezzo
€ 105.000
Rata mutuo Rata mutuo
€ 487 / mese
Spese annue Spese annue
€ 432
Proponi il tuo prezzoProponi il tuo prezzo
Immobile valutato con T·Valuta

Classe Energetica

G
G
G
G
G
G
G
G
G
Anno di costruzione:
1963
Riscaldamento:
Autonomo
Tipo impianto:
A radiatori
Tipo alimentazione:
Metano

Ti interessa visionare l'immobile?

Fissa un appuntamento  Fissa un appuntamento

Richiedi informazioni

Clicca su Leggi per aprire l'informativa
* Questi campi sono obbligatori

Calcola il tuo mutuo

Semplice e senza impegno
Anticipo

( % )
Mutuo

( % )

pochi semplici passi

inserisci i tuoi dati
Questionario completato
Grazie per aver richiesto un appuntamento senza impegno con un nostro Consulente del Credito e Assicurativo.

Hai inserito correttamente tutti i dati necessari e a breve riceverai una e-mail con un link da convalidare per inviare i tuoi dati.
Affiliato
Alma Project Srl
Via Nazionale Appia, 61 81022 Casagiove (CE)
Via Nazionale Appia, 61 81022 Casagiove (CE)
Zona: Casagiove
Mostra su mappa
Orari: lunedì - venerdì: 9.00 - 19.30 / sabato: 9.00 - 13.00
Affiliato
Alma Project Srl
Via Nazionale Appia, 61 81022 Casagiove (CE)

2026 Tecnocasa Franchising S.p.A. - P. IVA 08365160152 - Via Monte Bianco 60/A 20089 Rozzano (MI). Ogni agenzia ha un proprio titolare ed è autonoma. Privacy policy | Policy utilizzo | Cookie policy